Dom w miejscowości Przytkowice

582 000,00

Przytkowice, małopolskie

Skontaktuj się

Opis nieruchomości

Podane dane, które nie są zawarte w treści obwieszczenia (powierzchnia, ilość pokoi itd.) są przybliżone i mogą się różnić w rzeczywistości.

Wszystkie informacje odnośnie nieruchomości i zasadach przystąpienia do licytacji można uzyskać w Kancelarii Komorniczej,

34-100 Wadowice, ul. Łazówka 44

tel. 338744782

W przypadku kontaktu proszę powołać się na sygnaturę Km 86/22

 

Licytancie, zanim wpłacisz rękojmię lub cenę nabycia upewnij się, czy numer konta bankowego jest prawidłowy. Numer konta kancelarii lub sądu rejonowego można sprawdzić np. na stronach internetowych właściwego sądu rejonowego. Upewnij się, że wszystkie informacje pochodzą z pewnego źródła. W razie wątpliwości zalecany jest kontakt z kancelarią komorniczą lub sądem.

 

O B W I E S Z C Z E N I E

 

Komornik Sądowy przy Sądzie Rejonowym w Wadowicach zawiadamia na podstawie art. 9864 § 3 kpc, że w dniu 13 maja 2026 roku o godz. 11:00 na portalu e-licytacje .komornik. pl/ w trybie elektronicznym rozpocznie się:

 

P I E R W S Z A e-L I C Y T A C J A

 

nieruchomości gruntowej zabudowanej, położonej w miejscowości Przytkowice, gmina Kalwaria Zebrzydowska, powiat wadowicki, województwo małopolskie. Nieruchomość oznaczona w ewidencji gruntów jako działka nr 1378/11, o powierzchni 0,2212 ha.

 

Przetarg odbywa się w drodze elektronicznej i zakończy się w dniu 20 maja 2026 roku o godz. 11:00.

 

Nieruchomość oszacowana jest na kwotę: 582 000,00 zł.

 

Cena wywoławcza w powyższej licytacji wynosi: trzy czwarte wartości oszacowania tj. kwotę:436 500,00 zł

Przystępujący do licytacji zobowiązany jest złożyć rękojmię w wysokości 10% ceny oszacowania nieruchomości najpóźniej na 2 dni robocze przed rozpoczęciem przetargu. Za datę złożenia rękojmi przyjmuje się dzień uznania rachunku bankowego komornika.

 

W przetargu nie mogą uczestniczyć: dłużnik, komornik, ich małżonkowie, dzieci, rodzice i rodzeństwo oraz osoby obecne na licytacji w charakterze urzędowym, licytant, który nie wykonał warunków poprzedniej licytacji, osoby, które mogą nabyć nieruchomość tylko za zezwoleniem organu państwowego, a zezwolenia tego nie przedstawiły.

 

Na podstawie art. 9864 § 2 kpc warunkiem udziału w przetargu jest utworzenie indywidualnego konta w systemie teleinformatycznym obsługującym licytacje elektroniczne dostępnym pod adresem; elicytacje .komornik. pl

 

Nieruchomość można oglądać w ciągu dwóch tygodni przed licytacją po wcześniejszym uzgodnieniu terminu z komornikiem, akta sprawy (wraz z elaboratem szacunkowym tej nieruchomości do wglądu) znajdują się w biurze komornika.

 

Prawa osób trzecich nie będą przeszkodą do przeprowadzenia licytacji i przysądzenia własności na rzecz nabywcy bez zastrzeżeń, jeżeli osoby te przed rozpoczęciem licytacji nie złożą dowodu, iż wniosły powództwo o zwolnienie spod egzekucji tej nieruchomości lub innych przedmiotów razem z nią zajętych i uzyskały w tym zakresie orzeczenie wstrzymujące egzekucję. Użytkowanie, służebności i prawa dożywotnika, jeżeli nie są ujawnione w księdze wieczystej i nie zostaną zgłoszone najpóźniej na trzy dni przed rozpoczęciem licytacji, nie będą uwzględnione w dalszym toku egzekucji i wygasną z chwilą uprawomocnienia się postanowienia o przysądzeniu własności.

 

 

PEKH/1/717

Szczegóły ogłoszenia

Cena

582 000,00 zł

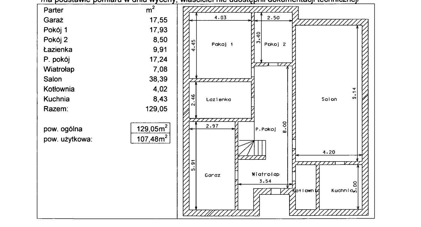
Powierzchnia

107.48 m2

Powierzchnia działki

2212 m2

Data licytacji

20.05.2026

Lokalizacja

Przytkowice, małopolskie

Liczba pokoi

3

Rodzaj zabudowy

wolnostojący

Rodzaj budynku

wolnostojący

Media

woda, kanalizacja, energia elektryczna

Dodatkowe

garaż

Zadzwoń do sprzedawcy

Mateusz Stachulec

661910428

    Kontakt ze sprzedawcą

    Podobne oferty

    Domy

    Dom jednorodzinny i budynek gospodarczy LICYTACJA

    Siewierska, Myszków, myszkowski, śląskie
    336,00 m2 | działka: 1 254,00 m2
    4 pokoje
     
    do odświeżenia | energia elektryczna, woda, szambo
    399 933,33
    Domy

    Gospodarstwo – Łupianka Nowa

    Łupianka Nowa, białostocki, podlaskie
    170,00 m2 | działka: 98 200,00 m2
    3 pokoje
    licytacja: 17.04.2026
    809 969,25
    Domy

    Udział 1/3 – Dom – Kolsko, ul. Młyńska

    Młyńska, Kolsko, nowosolski, lubuskie
    130,00 m2 | działka: 1 261,00 m2
    4 pokoje
    licytacja: 29.04.2026
    126 500,00
    Domy

    Dom jednorodzinny za garażem LICYTACJA

    marsz. Józefa Piłsudskiego, Strzegom, świdnicki, dolnośląskie
    123,50 m2 | działka: 503,00 m2
    4 pokoje
     
    do odświeżenia | energia elektryczna, kanalizacja, woda, gaz
    licytacja: 13.05.2026
    591 750,00
    Domy

    Dom w miejscowości Kołacze

    Kołacze, włodawski, lubelskie
    109,00 m2 | działka: 2 200,00 m2
     
    energia elektryczna, szambo, woda
    licytacja: 06.05.2026
    363 750,00
    Domy

    Dom: Kobielice, ul. Spacerowa

    ul. Spacerowa, Kobielice, pszczyński, śląskie
    184,40 m2 | działka: 1 047,00 m2
    6 pokoi
     
    energia elektryczna, woda, szambo
    licytacja: 16.04.2026
    411 675,00
    Domy

    Dom z garażem na ładnej działce

    Gdańska, Mińsk Mazowiecki, miński, mazowieckie
    154,54 m2 | działka: 369,00 m2
    4 pokoje
     
    do odświeżenia | energia elektryczna, kanalizacja, woda, gaz
    licytacja: 18.05.2026
    652 899,00
    Domy

    Budynek mieszkalno-usługowy LICYTACJA

    II Armii Wojska Polskiego, Ruszów, zgorzelecki, dolnośląskie
    218,50 m2 | działka: 168,00 m2
    3 pokoje
     
    do remontu | woda, kanalizacja, energia elektryczna
    licytacja: 21.05.2026
    310 500,00
    Domy

    Dom i hala magazynowa LICYTACJA

    os. 7 Dywizji, Gryfów Śląski, lwówecki, dolnośląskie
    652,60 m2 | działka: 8 456,00 m2
    5 pokoi
     
    do odświeżenia | energia elektryczna, kanalizacja, woda
    licytacja: 01.04.2026
    720 666,00