Mieszkanie: ul. Sienkiewicza 58-370 Boguszów-Gorce

67 125,00

Boguszów-Gorce, dolnośląskie

Skontaktuj się

Opis nieruchomości

Podane dane, które nie są zawarte w treści obwieszczenia (powierzchnia, ilość pokoi itd.) są przybliżone i mogą się różnić w rzeczywistości.

 

Wszystkie informacje odnośnie nieruchomości i zasadach przystąpienia do licytacji można uzyskać w Kancelarii Komorniczej,

ul. Dmowskiego 22, Wałbrzych, 58-300 Wałbrzych

tel. 74,6667725

W przypadku kontaktu proszę powołać się na sygnaturę Km 4371/18

 

Licytancie, zanim wpłacisz rękojmię lub cenę nabycia upewnij się, czy numer konta bankowego jest prawidłowy. Numer konta kancelarii lub sądu rejonowego można sprawdzić np. na stronach internetowych właściwego sądu rejonowego. Upewnij się, że wszystkie informacje pochodzą z pewnego źródła. W razie wątpliwości zalecany jest kontakt z kancelarią komorniczą lub sądem.

 

OBWIESZCZENIE OPIERWSZEJ LICYTACJI NIERUCHOMOŚCI W DRODZE LICYTACJI ELEKTRONICZNEJ

Komornik Sądowy przy Sądzie Rejonowym w Wałbrzychu Monika Janus na podstawie przepisu art. 9864 § 3kpc podaje do publicznej wiadomości, że o godz. 11:00 w dniu 11-03-2026r., na portalu e-licytacje. komornik. pl/ (ID e-licytacji: ) rozpocznie się pierwsza licytacja:

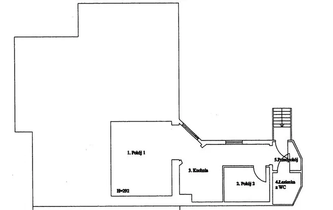
nieruchomości w postaci lokalu mieszkalnego o pow. użytkowej 44,50m2, położonego na parterze budynku, składającego się z 2 pokoi, kuchni, łazienki z WC, przedpokoju oraz 2 piwnic o pow. 10,00m2. Zatem powierzchnia użytkowa lokalu wraz z powierzchnią pomieszczeń przynależnych wynosi 54,50m2. Z własnością lokalu związany jest udział w wysokości 1 849/10 000 w nieruchomości wspólnej, która stanowi grunt oraz części budynku i urządzenia, które nie służą wyłącznie do użytku właścicieli lokali. Budynek w którym znajduje się lokal objęty jest ochroną konserwatorską i wpisany do wykazu zabytków. Stwierdzono niezgodność stanu ujawnionego w księdze wieczystej ze stanem faktycznym w dziale I-O w zakresie struktury lokalu tj., wg księgi wieczystej lokal składa się z 1 pokoju, kuchni, przedpokoju i 2 piwnic, natomiast faktycznie składa się z się z 2 pokoi, kuchni, łazienki z WC, przedpokoju oraz 2 piwnic.

Nieruchomość położona jest w obrębie nr 3 Boguszów, 58-370 Boguszów-Gorce, ul. Henryka Sienkiewicza, dla której to nieruchomości Sąd Rejonowy w Wałbrzychu VII Wydział Ksiąg Wieczystych prowadzi księgęwieczystą o numerze KW SW1W/XXXXXXXX/X.

Suma oszacowania wynosi 89 500,00zł, zaś cena wywołania jest równa 3/4 sumy oszacowania i wynosi 67 125,00zł.

Przetarg odbywa się w drodze elektronicznej i zakończy się w dniu 18.03.2026r., o godzinie 11:00.

 

Licytant przystępujący do przetargu powinien złożyć rękojmię w wysokości jednej dziesiątej sumy oszacowania, to jest 8 950,00zł.

Rękojmia powinna być złożona na rachunek bankowy komornika:

SANTANDER BANK POLSKA SA.

37 10902271 0000 0005 8411 2951

najpóźniej na 2 dni robocze przed rozpoczęciem przetargu.

 

Za datę złożenia rękojmi przyjmuje się dzień uznania rachunku bankowego komornika. Wraz z rękojmią licytant zobowiązany jest do podania w systemie teleinformatycznym danych niezbędnych do wydania postanowienia o przybiciu: numeru PESEL, numeru dokumentu stwierdzającego tożsamość i oświadczenia, czy pozostaje w związku małżeńskim, a jeżeli tak, czy nieruchomość zamierza nabyć do majątku wspólnego czy osobistego, oraz do wskazania, czy licytuje we własnym imieniu czy jako pełnomocnik innej osoby, a także innych danych, jeżeli potrzeba ich podania wynika z przepisów odrębnych ustaw. Zgodnie z przepisem art. 976 § 1 kpc w przetargu nie mogą uczestniczyć: dłużnik, komornik, ich małżonkowie, dzieci, rodzice i rodzeństwo oraz osoby obecne na licytacji w charakterze urzędowym, licytant, który nie wykonał warunków poprzedniej licytacji, osoby, które mogą nabyć nieruchomość tylko za zezwoleniem organu państwowego, a zezwolenia tego nie przedstawiły. W ciągu dwóch tygodni przed licytacją wolno oglądać wyżej wymienioną nieruchomość w dni powszednie od godz. 12:00 do godz. 14:00.

W systemie teleinformatycznym udostępnia się również protokół opisu i oszacowania.

Prawa osób trzecich nie będą przeszkodą do licytacji i przysądzenia własności na rzecz nabywcy bez zastrzeżeń, jeżeli osoby te przed rozpoczęciem przetargu nie złożą dowodu, iż wniosły powództwo o zwolnienie nieruchomości lub przedmiotów razem z nią zajętych od egzekucji i uzyskały w tym zakresie orzeczenie wstrzymujące egzekucję.

Użytkowanie, służebności i prawa dożywotnika, jeżeli nie są ujawnione w księdze wieczystej lub przez złożenie dokumentu do zbioru dokumentów i nie zostaną zgłoszone najpóźniej na trzy dni przed rozpoczęciem licytacji, nie będą uwzględnione w dalszym toku egzekucji i wygasną z chwilą uprawomocnienia się postanowienia o przysądzeniu własności.

Warunkiem udziału w przetargu jest utworzenie indywidualnego konta w systemie teleinformatycznym na portalu elicytacje .komornik. pl/ register.

 

PMBH/3/79

Szczegóły ogłoszenia

Cena

67 125,00 zł

Powierzchnia

44.5 m2

Data licytacji

11.03.2026

Lokalizacja

Sienkiewicza, Boguszów-Gorce, wałbrzyski, dolnośląskie

Liczba pokoi

2

Zadzwoń do sprzedawcy

Mateusz Stachulec

661910428

    Kontakt ze sprzedawcą

    Podobne oferty

    Mieszkania

    Mieszkanie 3-pokojowe udział LICYTACJA

    Mieszka I, Legionowo, legionowski, mazowieckie
    52,90 m2
    3 pokoje | 3 piętro
     
    do odświeżenia | prąd, woda, kanalizacja
    270 000,00
    Mieszkania

    3-pokojowe mieszkanie na parterze LICYTACJA

    Górzyn, Żarski, lubuskie
    105,80 m2
    3 pokoje
     
    do odświeżenia | prąd, woda, kanalizacja
    licytacja: 16.03.2026
    132 000,00
    Lokale użytkowe Mieszkania Nieruchomości przemysłowe

    Kwatery pracownicze, magazyny, usługi

    Legnicka, Olszyna, lubański, dolnośląskie
    2 713,50 m2 | działka: 7 338,00 m2
     
    do odświeżenia
    890 000,00
    Mieszkania

    Mieszkanie- ul. Słoneczna, Mrzeżyno

    Słoneczna, Mrzeżyno, gryficki, zachodniopomorskie
    57,60 m2
    3 pokoje
    licytacja: 04.02.2026
    410 250,00
    Mieszkania

    Mieszkanie: ul. Ziołowa, Augustów

    Ziołowa, Augustów, augustowski, podlaskie
    89,49 m2
    5 pokoi | 5 piętro
     
    prąd, woda, kanalizacja
    licytacja: 29.04.2026
    561 684,75
    Mieszkania

    Lokal mieszkalny przy ul. Wiejskiej w Dolicach

    Wiejska, Dolice, stargardzki, zachodniopomorskie
    312,80 m2
    2 pokoje
    licytacja: 12.02.2026
    41 888,67
    Mieszkania

    Udział 2/6, mieszkanie: ul. Unruga, Gdynia

    Unruga, Gdynia, Gdynia, pomorskie
    45,60 m2
    3 pokoje | 3 piętro
     
    prąd, woda, kanalizacja
    licytacja: 13.02.2026
    76 000,00
    Mieszkania

    Duże mieszkanie nad morzem: ul. Grunwaldzka, Ustka

    Grunwaldzka, Ustka, słupski, pomorskie
    110,36 m2
    4 pokoje
    licytacja: 12.03.2026
    681 590,00
    Mieszkania

    Mieszkanie w miejscowości Iłówiec

    Iłówiec , brodnicki, wielkopolskie
    54,49 m2
    2 pokoje
    licytacja: 02.02.2026
    150 000,00